2-bedroom Unit for rent at Unit 5/274 Camp Road, Broadmeadows, Vic 3047

Unit 5/274 Camp Road, Broadmeadows, Vic 3047 BROADMEADOWS
A$1920\mo
A$480\wk
Verified
  • 1 Bathroom
  • 2 Bedrooms
  • Unit - Unit (not-specified)
  • /
  • Available from: Available 27 Mar 2026
Sign up to access landlord contact details
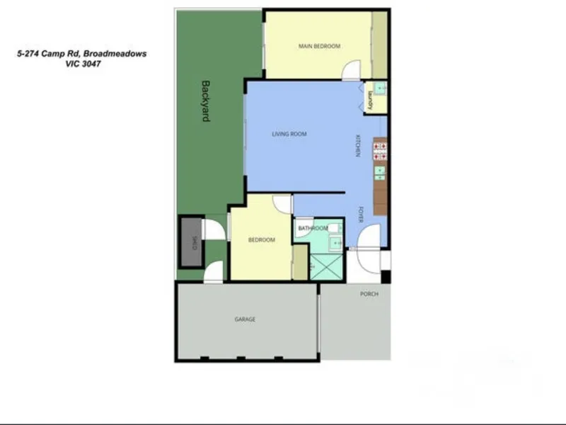
This well-presented two-bedroom single-storey unit offers comfortable, low-maintenance living in a practical layout. Featuring open-plan living and kitchen areas, the home is ideal for downsizers, or singles.

The lounge and main bedroom are fitted with reverse-cycle air conditioning for year-round comfort. A single garage with remote access provides secure parking and internal convenience.

Step outside to an enclosed rear yard complete with a garden shed—perfect for extra storage or easy outdoor enjoyment. Features include:

- Two generous bedrooms with robes

- * Open-plan living and kitchen

- * Reverse-cycle air conditioning to lounge and main bedroom

- * Single garage with remote access door

- * Enclosed rear yard with garden shed

- * Low-maintenance, single-level design A solid opportunity offering comfort, convenience, and easy living.

Property Code: 361

Similar Properties

LogoLogo
Paypal SSL Rating PCI Logo